宁夏中卫凤云开关站110千伏输变电工程项目规划批前公示
项目简介:国网宁夏电力有限公司中卫供电公司在中卫工业园区内建设宁夏中卫凤云开关站110千伏输变电工程。本着尊重与维护市民对城市规划的知情权和监督权,现予以公示。
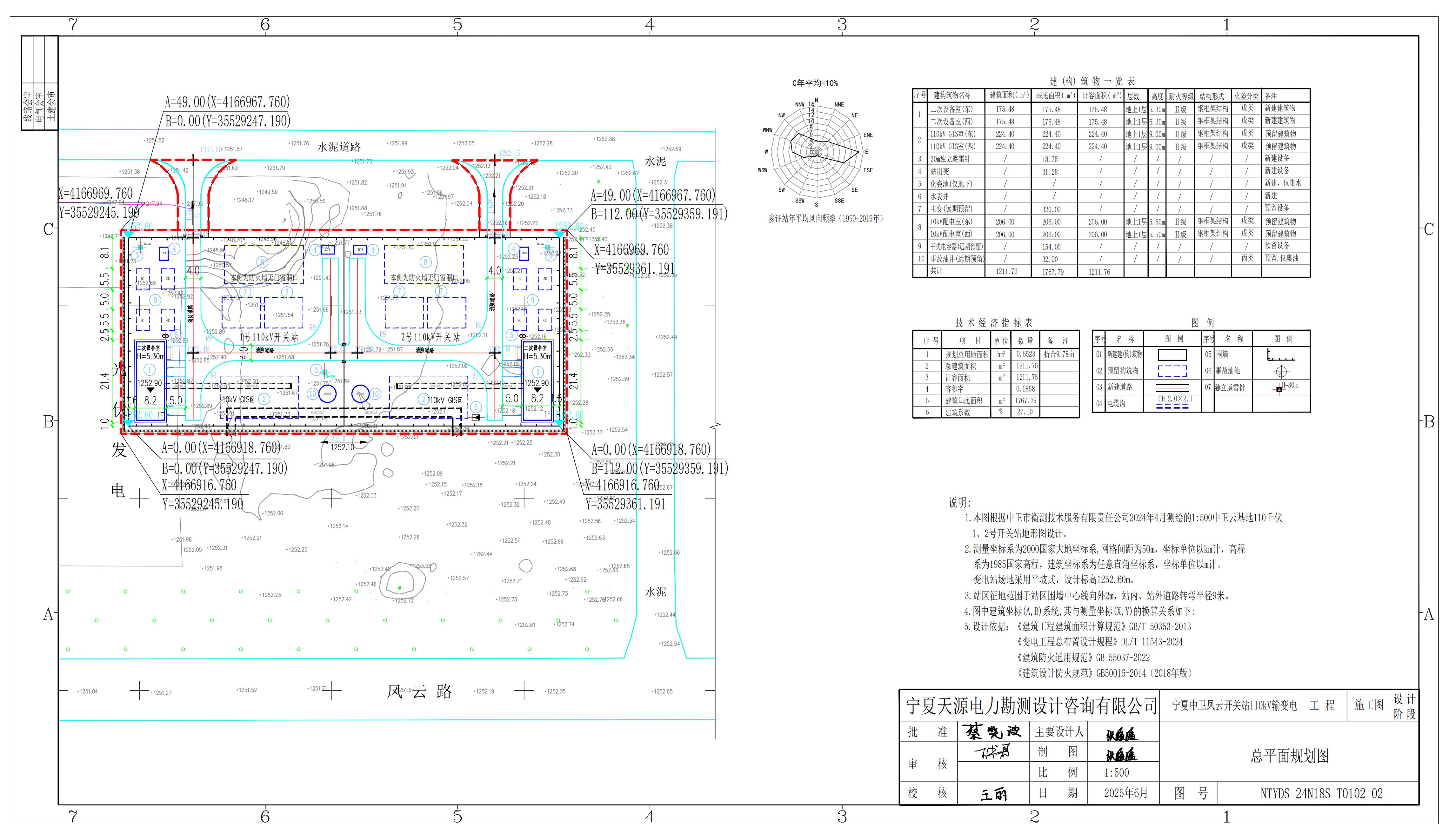
公示内容:项目位于中卫工业园区,项目用地面积6523平方米,建筑面积1211.76平方米,容积率0.1858,建筑系数27.10%。主要建设两栋二次设备室,主体结构为钢框架结构,地上一层。
如有异议,请在公示期间提出意见与建议。
建设单位:国网宁夏电力有限公司中卫供电公司
设计单位:宁夏天源电力勘测设计咨询有限公司
建设地点:中卫工业园区
工程名称:宁夏中卫凤云开关站110千伏输变电工程
公示单位:宁夏中卫工业园区管理委员会
联系地址:中卫工业园区
联系电话:0955-8813755
公示时间:2025年6月25日至7月3日



附件下载:
扫一扫在手机上查看当前页面

宁公网安备64050202000082号

