中国移动(宁夏中卫)数据中心五期建设项目规划批前公示
项目简介:中国移动(宁夏中卫)数据中心五期建设项目在宁夏中卫工业园区投资建设的数据中心项目。本着尊重与维护市民对城市规划的知情权和监督权,现予以公示。
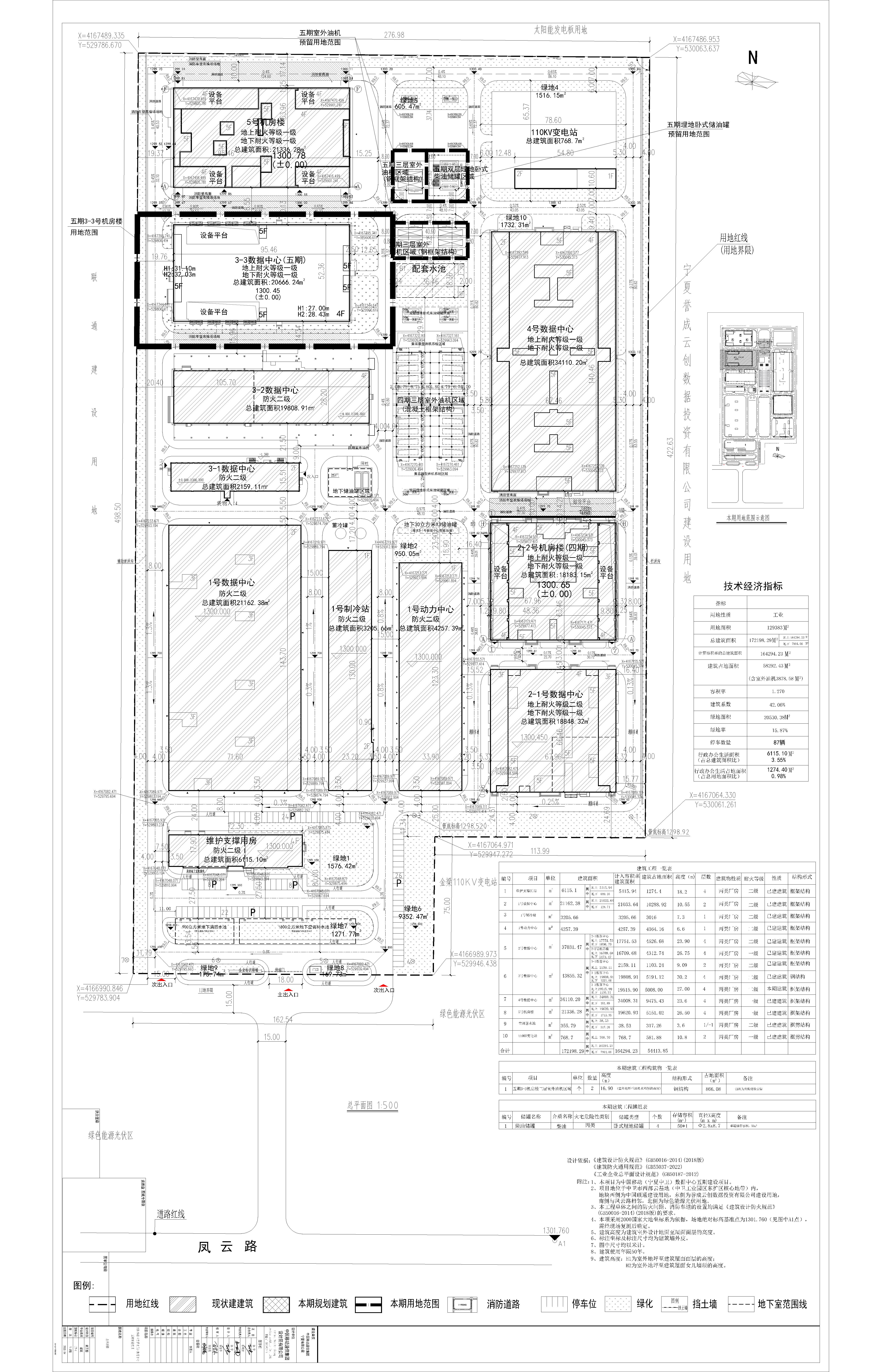
公示内容:项目位于宁夏中卫工业园区内,项目用地面积129383平方米,总建筑面积172198.29平方米。本期报规建筑面积20666.24平方米,容积率1.27,建筑系数42.06%,绿地率15.87%。主要建设1栋机房楼,主体结构为钢筋混凝土框架结构,主体四层,局部地下一层,局部出屋面一层,内部配套建设卫生间、设备用房、机房区、电力用房区等。
如有异议,请在公示期间提出意见与建议。
建设单位:中国移动通信集团宁夏有限公司
设计单位:中国移动通信集团设计院有限公司
建设地点:宁夏中卫工业园区
工程名称:中国移动(宁夏中卫)数据中心五期建设项目
公示单位:宁夏中卫工业园区管理委员会
联系地址:中卫工业园区
联系电话:0955-8813755
公示时间:2025年4月16日至4月24日



附件下载:
扫一扫在手机上查看当前页面

宁公网安备64050202000082号

